
在现代空间装潢设计中,几何元素被大量运用在结构设计、陈设设计或图案设计中。几何元素,能给人以明快、利落、优雅的美感,以及富有张力的空间感。
事实上,人类对几何的热爱由来已久。一些古代美学家认为,圆、正方形、正三角形等几何形状,因其简单和肯定,具有抽象一致性,象征着统一和完整,可避免任意性,可引发人们对美的感受。这种观点对建筑构图影响很大。古代许多优秀建筑作品不论是平面形状、体形组合,乃至细部处理,都以上述几种简单的几何图形作为构图依据,从而获得了高度的完整统一性。
极简主义兴起后,空间设计则更倾向于取材纯粹、简约的几何形状,使观赏体验达到新的高度。今天,我们就一起来欣赏3个充满几何元素的美学空间设计案例。
▷ 这栋建筑原来的内部空间方正而整齐,略显呆板,与推崇时尚个性的美发行业格格不入。在改造过程中,设计师联想到:BOB发型干练的构线凸显了立体几何剪裁,利落优雅而又锋芒毕露。当肩颈线的交错和发缘轮廓线的内角呈78°时,BOB的魅力将被发挥到极致,于是设计师便以这个灵感对建筑进行了设计改造。
▼ 以BOB 78°倾斜发型为灵感的室内设计

▼ 维卡博造型商学院入口区域

▷ 在设计的整体布局中明确了一条78°倾斜的主分割线,从入口大门直通至内部教学区的走廊尽头。斜线立刻打破了原空间的刻板审美,活跃了严肃的空间氛围,也带来了极富张力的内部空间。通过多层次的光线整理、纯粹明快的建筑材料、变化丰富的空间尺度、细腻冷静的色彩材质肌理使之与整个场所的精神气质相互呼应。
▼ 大厅空间

▼ 休息空间


▼ 空间内雕塑般的楼梯显现出几何美感

▼ 玻璃、木材、镜面材料构成的折线楼梯


▼ 楼梯镜面反射扩大了室内空间

▼ 一层洗发区与二层vip室

▼ 满足不同功能需求的教室

▷ 各个细分的空间依附于核心布局,发挥着不同的功能。室内空间和散落的家具、植物在镜子、磨砂玻璃和聚碳酸酯板中不断反射、重复,或真或假、层次丰富。为身居其中的人们带来了更多相遇、交谈、活动、彼此连接的机会。
▼ 反射室内景象的走廊空间


▼ 首层平面图

▼ 二层平面图

▼ 楼梯构造详图

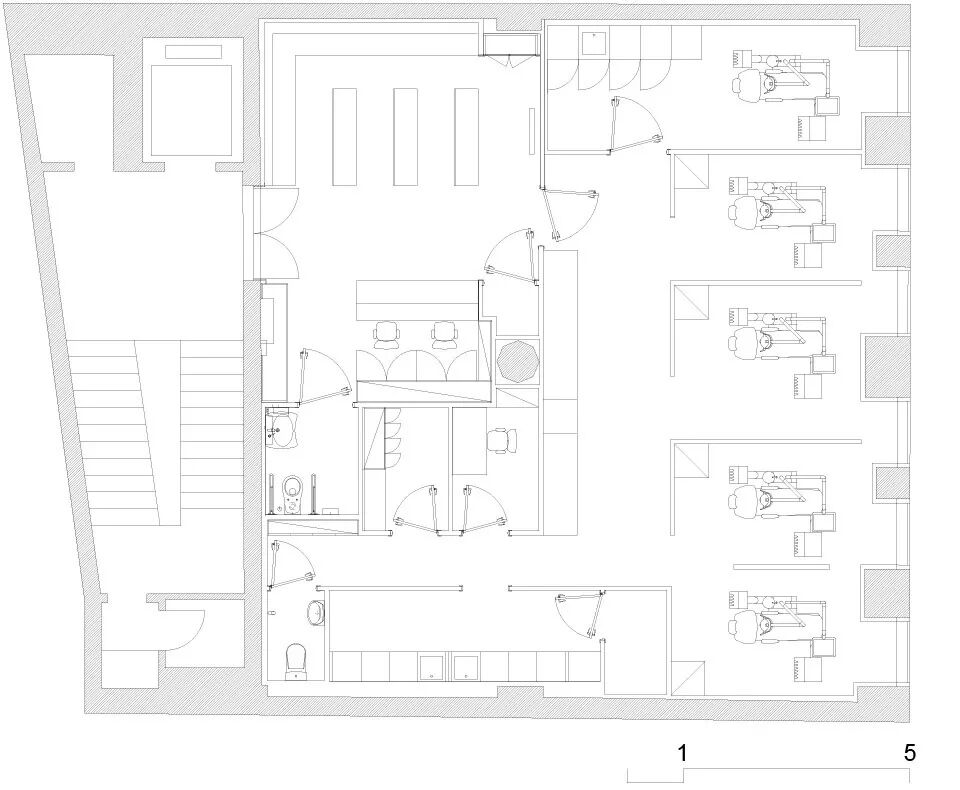
▷ 日本建筑师Ren Ito和意大利建筑师Alessandro Pepe共同组建了设计工作室:Ren Pepe
Arquitetos。近日他们设计的葡萄牙波尔图牙医诊所完工了。该牙医诊所共拥有5个治疗位,在一间旧办公室的基础上改建。项目从附近建筑得到灵感,在墙面和家具中使用了有当地风味的几何图案。

▷ 项目中的几何图案被运用在墙壁,家具,照明和门板上。采用三种材料诠释:石膏板墙,PVC面板以及波雷尔毛纺织物 —— 其可以运用在墙面上当吸声板。
▷ 在等待室,照明灯具也融于墙面的图案,此外房间中的等候长椅也运用了设计中的三角形特色元素。一道印有设计图案的门隔开了等候室和诊疗场所,进入诊疗场所,四个治疗位被低隔断分割,剩下一个治疗位因为采用X射线系统而被墙壁完全的分割。此外还有一个办公室,工作室,更衣室,以及浴室。





▼ 建筑平面图

▷ Usfin Atelier美发沙龙在悉尼CBD的Precinct 75商业区重新开业。屡获褒奖的室内设计师George Livissianis为之打造了一个光线充足的未来主义空间,重新定义了传统的沙龙体验。
▼ 沙龙位于一间旧仓库内

▷ 这一360平方米的空间位于Taubmans油漆厂的旧仓库内。设计旨在营造一种独特而现代、极简而具有未来主义特征的氛围,同时还要为空间赋予灵活性,使其能够轻易地被清空,从而为艺术家和设计师们提供研讨与合作的场地。为此,设计师特意研究了机舱手推车、货运箱以及可移动的乐器箱,最终创造出一系列可以随时移动的“舱体”。在使用结束后,这些舱体可以立即关闭然后借助底部的滑轮从场地中移走。
▼ 入口区域的色彩实验室

▼ 室内概览



▷ 为了给顾客提供一个更加私密的美发空间,设计师与货箱制造商Novaforge进行合作,定制出一款铝制的“舱体”,其内部空间则铺设以镜面。舱体通过一条类似于传统电话线的中央线路获得电源。
▼ 定制的“舱体”内部铺设以镜面

▷ 储藏室和洗发区被隐藏在聚碳酸酯材质的墙壁后方,具有良好的隐私性。此外,入口处还设有一间“色彩实验室”,其柜台面积可以扩大为原来的两倍,作为造型课程的工作台使用。
▼ 储藏室和洗发区被隐藏在沙龙后方

