
美业美学
绿色植物给人以天然、舒适、清凉的感受。以下4组沙龙设计,都以绿色植物为主题。分别以植物与镜子营造变换空间、植物墙等方式,让植物的呈现化平淡为惊艳,从而营造美好的沙龙空间。
日本大阪LECINQ美发沙龙
▷ 这个美发沙龙位于日本大阪Kadoma市,由ninkipen设计。设计师首先在室内种植了高达3米的发财树,在其周围放置镜子,犹如一个漩涡。同时在它们周围又设置了更多的镜子和植物。这样,顾客在镜子面前就可以完全放松,因为视线不会与其他顾客相遇。同时也可以看到镜子反射的植物图像。
▼ 前台
斑点狗的装饰令人感到趣味与友好。清淡的主体色调与色彩鲜明的椅子、窗帘等装饰物,给空间带来了清新活泼的感觉。

▼ 前台右侧的主要工作区,通过有台阶的木地板区分。


▷ 极简的白色空间,绿色植物是最醒目的装饰
▷ 全白的空间与大量的镜子延伸视觉,企图在每一个位子都可以看到植物的绿意。坚持光线的明亮,色泽的自然,加上室外光线的变化,让空间有了时间的变化。处处绿意让心情平静放松,何尝不是一种身心灵的洗礼。



▼ 工作台的细节 每一面镜子里,都有美丽的绿色植物。

▼ 工作台下精简的电线

▼ 前台的另一侧

▼ 门口 位于建筑的上层



中国台北 Piaoliang 理发工作室
▷ “Piaoliang”美发沙龙由Lo-Wen工作室Jackie Chen设计。
▷ Piaoliang理发工作室位于一个住宅楼的一层,这在台北很常见。为了使沙龙的功能空间最大化,设计被概念化为一系列相互关联的物体和体积,就像拼图的碎片一样,在深层平面中创造出一些更小、更私密的空间(大约11米宽17米深)。
▷ 面向街道的地理位置直接展示了沙龙的核心业务,主要的裁剪和造型空间,并吸引路人进店。次要的造型空间位于平面图的核心,分解为更私密的空间组合。必要的配套设施和储物空间都位于后角,以及半封闭式VIP洗发空间(名人和时尚模特经常光顾)。

水泥和大理石与木材组成的室内装饰显得刚柔相济。郁郁葱葱的垂直花园与内敛的室内空间形成了鲜明的对比,故意混淆了内部空间和外部空间的区别。
巨大的镜子能最大限度地发挥自然光的影响,从沙龙的各个角落里瞥见绿色植物,进一步模糊了空间的界限。大屏幕和全高的玻璃窗打破了固定的“边缘”的感觉,空间之间有趣地流动。
▼入口大厅

设计师被赋予了充分的自主权,并设计了一套完整的功能概要,使他能够追求一种不妥协的设计。从空间到建筑的细木工和定制的存储单元,细节井然有序。空间被有效地利用,同时保持一种空间感,简单和平静。
▼接待处

▼连续的顶灯一直延伸到镜子前,增强了空间的纵深感,顾客进入到理发空间

▷ 充分利用空间,内外虚实相互的转换,让室外光线可以轻易进到内部,也增加了内部使用空间。内部众多的落地镜子作空间的间隔。“口”字型的的动线规划,方便小空间繁忙的出入,就算在工作时,也可以立即打开落地窗,轻易走到对角。
▼落地镜与植物墙相对,景观从视觉上成倍

▼造型空间的落地镜包裹着更需隐私的VIP室,落地镜打开是储藏空间

▼又回到入口处的理发室

▼理发室的落地窗可以打开成门,直接走到入口大堂

▼白色作为主打色,和镜子一起将空间感加大


▼为客户量身定制的染发吧台和洗头间

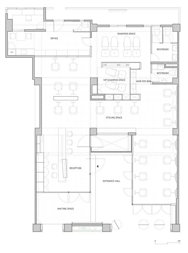
▼平面图

沙特阿拉伯美容沙龙与水疗中心设计

▷ 该品牌的新理念旨在为客户提升整体美容体验,其室内设计由SUPERFUTUREDESIGN设计,整个空间设计师采用天然的木材、大理石和暖色来完成,打造了一个独特的、令人放松的隐居地。垂直花园在分隔空间的同时,起到了一个焦点的作用。
▷ 其设计的灵感来自于禅宗花园的鹅卵石,两个巨大的圆形轮廓以打开大门的姿态迎接客户。

▷ 随后进入下一个区域,吸音天花板弧形面板受到声波的启发,一直渗透到美发沙龙里间。




波兰MOSS美容美发沙龙
▷ MOSS美容美发沙龙是由上下两部分级别不等的服务区合并而成的。底下一部分直接位于街边,顾客可直接进入,内设有主要接待区,美发沙龙和美甲区、足疗区。顶上一部分拥有定制楼梯,配备有专门区域,可供做头发、温泉和放松。这个专门用于放松的区域是位于入口处上方和高级服务区的中间楼层。
▷ 条件允许的时候,MOSS也偶尔作为画廊,用于艺术和摄影展览。

▷ Moss内部设计的主题是鲜艳明亮的绿色。在主要入口处的屋顶和墙上都装饰着这种颜色。作为组合墙,与高级服务区区分开,包括家具的设计也都融合了这种绿色的感觉。
▷ Moss通过这些鲜艳明亮的绿色结合冷色调灰色建筑混凝土面板,象征着生命力和活力。其内部装修元素还很自然地融入了温暖宜人的木头。特别是木家具,使用范围和尺寸都极大——包括两个服务区的接待区咨询台、楼梯和中间楼层的放松区。



▷ 中立的白墙和光滑的表面,更突显出绿色、混凝土和木材的纹理和颜色的对比,这种几何结构的设计也被比作是苔藓中的岩石。几何形状的定制家具和几何形状的中间楼层、楼梯和咨询台相呼应。

